Skip To Content

3735 Treat Lane

Springdale, AR 72762
  • $28,553
  • STATUS: Active
  • ON SITE: 167 Days
  • MLS #: 1316796
UPDATED: 41 min ago
$28,553
  • 0
    BEDS
  • 2.44
    ACRES
  • 0
    BATHS
  • 0
    1/2 BATHS
  • 26,357
    SQFT
  • $1
    $/SQFT
Neighborhood:
Type:
Commercial-Lease
Built:
2013
County:
Area:

School Ratings & Info

Description

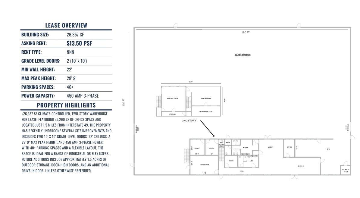
Lease overview: Building size: 26,357 SF. Asking rent: $13.50 PSF. Rent type: NNN. Grade level doors: 2 (10' x 10'). Min wall height: 22'. Max peak height: 28' 9". Parking spaces: 40+. Power capacity: 450 AMP 3-phase. Property highlights: 26,357 sf climate-controlled, two-story warehouse for lease, featuring 5,290 sf of office space and located just 1.5 miles from Interstate 49. The property has recently undergone several site improvements and includes two 10' x 10' grade-level doors, 22' ceilings, a 28' 9" max peak height, and 450 amp 3-phase power. With 40+ parking spaces and a flexible layout, the space is ideal for a range of industrial or flex users. Future additions include approximately 1.5 acres of outdoor storage, dock-high doors, and an additional drive-in door, unless otherwise preferred.



© 2026 Northwest Arkansas Board of Realtors, Inc. All rights reserved. IDX information is provided exclusively for consumers' personal, non-commercial use and may not be used for any purpose other than to identify prospective properties consumers may be interested in purchasing. Information is deemed reliable but is not guaranteed accurate by the MLS or McNaughton Real Estate. Data last updated: 2026-01-19T11:26:09.523.
www.allnwahomes.com/homes/166572198
Print Image

3735 Treat Lane Springdale, AR 72762

  • Price: $28,553
  • Status: Active
  • On Site: 167 Days
  • Updated: 41 min ago
  • MLS #: 1316796
0
Beds
0
Baths
0
½ Baths
2.44
Acres
26,357
SQFT
$1
$/SQFT
2013
Built
Neighborhood:
Springdale Outlots
County:
Washington
Area:
Washington
Property Description
Lease overview: Building size: 26,357 SF. Asking rent: $13.50 PSF. Rent type: NNN. Grade level doors: 2 (10' x 10'). Min wall height: 22'. Max peak height: 28' 9". Parking spaces: 40+. Power capacity: 450 AMP 3-phase. Property highlights: 26,357 sf climate-controlled, two-story warehouse for lease, featuring 5,290 sf of office space and located just 1.5 miles from Interstate 49. The property has recently undergone several site improvements and includes two 10' x 10' grade-level doors, 22' ceilings, a 28' 9" max peak height, and 450 amp 3-phase power. With 40+ parking spaces and a flexible layout, the space is ideal for a range of industrial or flex users. Future additions include approximately 1.5 acres of outdoor storage, dock-high doors, and an additional drive-in door, unless otherwise preferred.
Exterior Features

Lot Features Other See Remarks

Property Features

Availability Date 2025-08-04 Possible Use Automotive Manufacturing Warehouse Property Sub Type Warehouse Special Listing Conditions None Tax Annual Amount 19076 Year Built Details Resale (less than 25 years old)

Listing provided by Focus Commercial Real Estate: 479-254-7000.


© 2026 Northwest Arkansas Board of Realtors, Inc. All rights reserved. IDX information is provided exclusively for consumers' personal, non-commercial use and may not be used for any purpose other than to identify prospective properties consumers may be interested in purchasing. Information is deemed reliable but is not guaranteed accurate by the MLS or McNaughton Real Estate. Data last updated: 2026-01-19T11:26:09.523.
 
https://bt-photos.global.ssl.fastly.net/arkansas/orig_boomver_2_1316796-2.jpg https://bt-photos.global.ssl.fastly.net/arkansas/orig_boomver_2_1316796-2.jpg https://bt-photos.global.ssl.fastly.net/arkansas/orig_boomver_2_1316796-2.jpg
Logo
McNaughton Real Estate
4299 W. Persimmon
Fayetteville AR, 72704