Skip To Content

904 Clayton Street

Springdale, AR 72762
  • $10
  • STATUS: Closed
  • ON SITE: 311 Days
  • MLS #: 1295528
Sold - 02/15/2025
$10
SOLD - 02/15/2025
  • 0
    BEDS
  • 0.97
    ACRES
  • 0
    BATHS
  • 0
    1/2 BATHS
  • 13,055
    SQFT
  • $0
    $/SQFT
Neighborhood:
Type:
Commercial-Lease
Built:
2005
County:
Area:

School Ratings & Info

Description

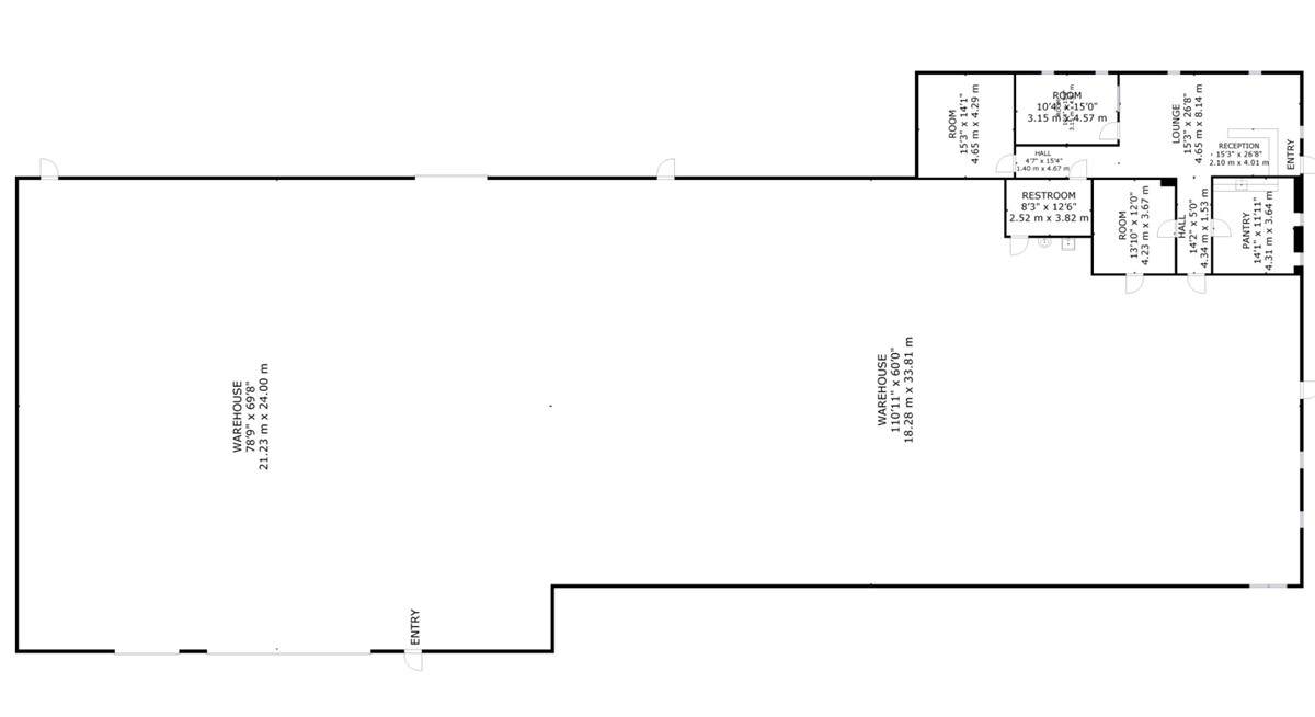
1 mile drive to Interstate-49. Approximately 1,100 SF of office space. Two offices, one showroom, two bathrooms, and one breakroom. Grade level doors: 1 (12x24) Max wall height: 17.5' Max peak height: 18.5' Clear span: 12.5' Dock level doors: 1 Power capacity: 3-phase | 240V | 400 AMP



© 2025 Northwest Arkansas Board of Realtors, Inc. All rights reserved. IDX information is provided exclusively for consumers' personal, non-commercial use and may not be used for any purpose other than to identify prospective properties consumers may be interested in purchasing. Information is deemed reliable but is not guaranteed accurate by the MLS or McNaughton Real Estate. Data last updated: 2025-11-16T10:26:13.4.
www.allnwahomes.com/homes/159279560
Print Image

904 Clayton Street Springdale, AR 72762

  • Price: $10,879
  • Status: Closed
  • On Site: 311 Days
  • Updated: 28 min ago
  • MLS #: 1295528
0
Beds
0
Baths
0
½ Baths
0.97
Acres
13,055
SQFT
$0
$/SQFT
2005
Built
Neighborhood:
Sunset Indust Park Rep
County:
Washington
Area:
Washington
Property Description
1 mile drive to Interstate-49. Approximately 1,100 SF of office space. Two offices, one showroom, two bathrooms, and one breakroom. Grade level doors: 1 (12x24) Max wall height: 17.5' Max peak height: 18.5' Clear span: 12.5' Dock level doors: 1 Power capacity: 3-phase | 240V | 400 AMP
Exterior Features

Lot Features Other See Remarks

Property Features

Availability Date 2025-01-08 Possible Use Automotive Manufacturing Office Warehouse Property Sub Type Warehouse Special Listing Conditions None Tax Annual Amount 4237 Year Built Details Resale (less than 25 years old)

Listing provided by Bennett Commercial Real Estate: 479-278-4040.


© 2025 Northwest Arkansas Board of Realtors, Inc. All rights reserved. IDX information is provided exclusively for consumers' personal, non-commercial use and may not be used for any purpose other than to identify prospective properties consumers may be interested in purchasing. Information is deemed reliable but is not guaranteed accurate by the MLS or McNaughton Real Estate. Data last updated: 2025-11-16T10:26:13.4.
 
https://bt-photos.global.ssl.fastly.net/arkansas/orig_boomver_1_1295528-2.jpg https://bt-photos.global.ssl.fastly.net/arkansas/orig_boomver_1_1295528-2.jpg https://bt-photos.global.ssl.fastly.net/arkansas/orig_boomver_1_1295528-2.jpg
Logo
McNaughton Real Estate
4299 W. Persimmon
Fayetteville AR, 72704