Skip To Content

NE Of N 13th Street & W Easy Street

Rogers, AR 72756
  • $60,315
  • STATUS: Active
  • ON SITE: 1279 Days
  • MLS #: 1226720
UPDATED: 55 min ago
$60,315
  • 0
    BEDS
  • 6.67
    ACRES
  • 0
    BATHS
  • 0
    1/2 BATHS
  • 51,699
    SQFT
  • $1
    $/SQFT
Type:
Commercial-Lease
County:
Area:

School Ratings & Info

Description

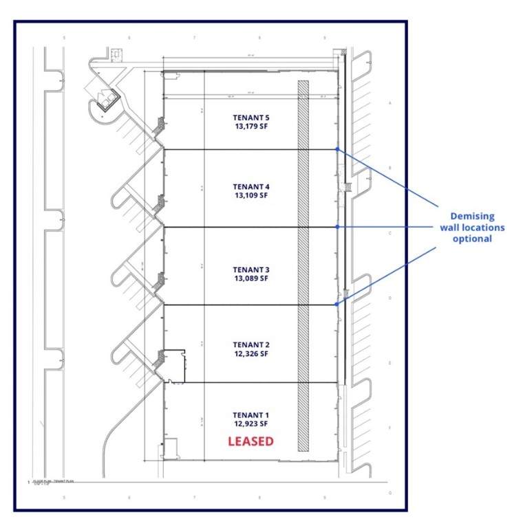
Property Amenities • New Flex/ Industrial building currently being constructed to deliver JUN 2026 • 12,326sf to 51,699sf available for lease • Four loading docks total for the 51,699sf space or 1 per 13,000sf space • Sloped roof clear height ranges from 18’2” to 31’5” • Zoned I-2 Heavy Industrial • Tenant Improvement allowance negotiable • Each 13,000 SF bay is 76’ wide by 171’ deep



© 2026 Northwest Arkansas Board of Realtors, Inc. All rights reserved. IDX information is provided exclusively for consumers' personal, non-commercial use and may not be used for any purpose other than to identify prospective properties consumers may be interested in purchasing. Information is deemed reliable but is not guaranteed accurate by the MLS or McNaughton Real Estate. Data last updated: 2026-02-11T22:26:24.68.
www.allnwahomes.com/homes/132048751
Print Image

NE Of N 13th Street & W Easy Street Rogers, AR 72756

  • Price: $60,315
  • Status: Active
  • On Site: 1279 Days
  • Updated: 55 min ago
  • MLS #: 1226720
0
Beds
0
Baths
0
½ Baths
6.67
Acres
51,699
SQFT
$1
$/SQFT
County:
Benton
Area:
Benton
Property Description
Property Amenities • New Flex/ Industrial building currently being constructed to deliver JUN 2026 • 12,326sf to 51,699sf available for lease • Four loading docks total for the 51,699sf space or 1 per 13,000sf space • Sloped roof clear height ranges from 18’2” to 31’5” • Zoned I-2 Heavy Industrial • Tenant Improvement allowance negotiable • Each 13,000 SF bay is 76’ wide by 171’ deep
Exterior Features

Lot Features Industrial Park Road Frontage Type Main Thoroughfare

Property Features

Availability Date 2023-04-01 Current Use Industrial Possible Use Manufacturing Property Sub Type Industrial Special Listing Conditions None Year Built Details New Construction

Listing provided by Colliers International - Branch Office: 479-636-9000.


© 2026 Northwest Arkansas Board of Realtors, Inc. All rights reserved. IDX information is provided exclusively for consumers' personal, non-commercial use and may not be used for any purpose other than to identify prospective properties consumers may be interested in purchasing. Information is deemed reliable but is not guaranteed accurate by the MLS or McNaughton Real Estate. Data last updated: 2026-02-11T22:26:24.68.
 
https://bt-photos.global.ssl.fastly.net/arkansas/orig_boomver_2_1226720-2.jpg https://bt-photos.global.ssl.fastly.net/arkansas/orig_boomver_2_1226720-2.jpg https://bt-photos.global.ssl.fastly.net/arkansas/orig_boomver_2_1226720-2.jpg
Logo
McNaughton Real Estate
4299 W. Persimmon
Fayetteville AR, 72704